Finde, was du suchst!

Starte deine Suche und finde alle Infos rund um dein Bauprojekt!

22395
Hamburg

BUCHORN-Massivhaus baut Ihre Stadtvilla-Doppelhaushälfte in HH-Bergstedt

619.000 €

Gäste-WC

Beschreibung

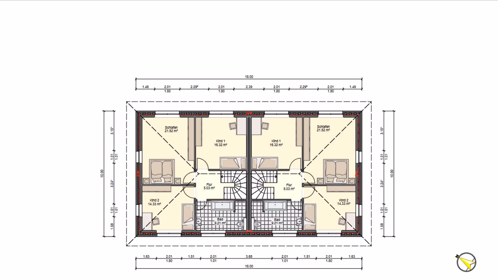
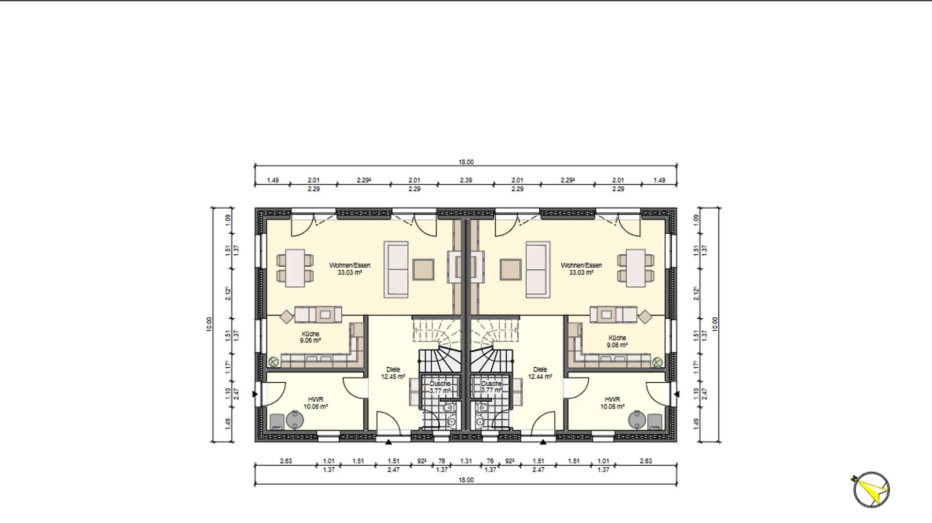
Eine sehr schöne Stadtvilla als Doppelhaushälfte/Verblendvariante (verklinkert) in gehobener Ausstattung als KfW-Effizinenzhaus 40. Perfekt für die ganze Familie. Gebaut in norddeutscher Art und Tradition Massiv Stein auf Stein. Hier erwarten Sie ca. 135m² Wohnfläche auf 2 Etagen mit 3 Schlafräumen, einem Vollbad und einem Flur im Obergeschoss sowie einen großen Wohn/Esszimmer, Küche, HWR/TECHNIKRAUM, Gäste-WC und einem Flur im Erdgeschoss. Wohntraum du kannst loslegen und Sie sind dabei!

Ausstattung

Bei Buchorn Bau sind wir in den malerischen Landschaften Schleswig-Holsteins sowie im urbanen Raum Hamburgs aktiv, um individuelle Wohnträume zu erfüllen. Diese beiden Regionen bieten eine einzigartige Mischung aus natürlicher Schönheit und städtischem Leben, was sie zu idealen Standorten für Dein zukünftiges Zuhause macht. Ob Du die Ruhe und die Nähe zur Natur in Schleswig- Holstein bevorzugst oder das lebendige, kulturelle Angebot Hamburgs schätzt – Buchorn Bau steht bereit, Dein Bauvorhaben mit höchster Qualität und persönlicher Beratung zu realisieren. Buchorn-Bau...Kompetenz und Leidenschaft im Bauwesen!!! An der Spitze von Buchorn Bau stehen Alexander Buchorn, der Gründer und Geschäftsführer, und Konstantin Schreiner, der als Prokurist den Verkauf leitet. Alexander Buchorn, ein Meister im Maurer- und Betonbauerhandwerk, hat bereits mit 24 seine Meisterprüfung absolviert und sich direkt danach in die Selbstständigkeit gewagt. Seine Vision, aktuelle Bautrends mit den höchsten Qualitätsstandards zu verbinden, hat Buchorn Bau zu einem Synonym für exzellentes Bauhandwerk gemacht. Konstantin Schreiner, staatlich geprüfter Betriebswirt, ergänzt das Führungsteam mit seiner Expertise im Verkauf und in der Betriebsführung. Gemeinsam bilden sie ein starkes Duo, das Innovationen vorantreibt und dafür sorgt, dass Kundenwünsche nicht nur erfüllt, sondern übertroffen werden. Ihre Leidenschaft für das Bauhandwerk und das Streben nach Perfektion prägen die Philosophie von Buchorn Bau und garantieren die Realisierung von Wohnträumen auf höchstem Niveau. Eine sehr schicke Stadtvilla-Doppelhaushälfte in gehobener Ausstattung.

Lage

In unmittelbarer Nähe zum Naturschutzgebiet ”Hainesch Iland” liegt dieses Grundstück im beliebten, familienfreundlichen Stadtteil Hamburg-Bergstedt. Hier finden Sie die perfek- te Mischung aus naturnahem- aber auch zentralem Wohnen mit einer guten Infrastruk- tur. Die direkte Nachbarschaft ist vornehmlich geprägt durch weitläufige Grünflächen mit Pferdekoppeln sowie ansprechende Ein- und Zweifamilienhausbebauung mit gepflegten Gartenflächen. Besonders geschätzt wird hier der hohe Freizeitwert durch die zahlreichen Naherholungsgebiete und die vielfältigen Sportmöglichkeiten (Reiten, Golf, Tennis usw.). Gleichzeitig bedient die sehr gute Anbindung an das öffentliche Verkehrsnetz, durch eine nur wenige Meter entfernt gelegene Bushaltestelle, den Anschluss an das Hamburger U-/ S-Bahnnetz. Einkaufsmöglichkeiten für den täglichen Bedarf sind im Ortskern vorhanden. Für ausgedehnten Einkaufskomfort fahren Sie mit dem Auto gut 5 Minuten in das Alstertal- Einkaufs-Zentrum (AEZ). Sämtliche Schulformen sowie verschiedene Kindergärten sind im näheren Umkreis ausreichend vorhanden.

Stefan Martensen

Beratung & Vertrieb
martensen@buchorn-bau.de
01733280006
Stefan Martensen
Exposé anfordern

Objektdaten:

Adresse
,
22395
Hamburg
Baujahr
2025
Nutzungsart
Wohnen
Objektart
Doppelhaushälfte
Objektzustand
nach Vereinbarung
Bauphase
Haus in Planung
Qualität
gehoben
Zimmer
4
Schlafzimmer
3
Badezimmer
1
Wohnfläche
135 m²
Grundstück
349 m²
Heizungsart
Wärmepumpe

Energieausweis

Energieausweis wird nach Fertigstellung angefertigt.
Kontakt

Wir beraten dich gerne

E-Mail

Du erreichst uns jederzeit per E-Mail. Sende uns deine Anfrage und wir werden uns so schnell wie möglich bei dir melden.

info@buchorn-bau.de

Telefon

Für direkte Anfragen stehen wir dir gerne telefonisch zur Verfügung. Ruf uns an, wir beraten dich individuell und kompetent.

+49 4331 / 86 888 06

Büro

Komm für ein persönliches Gespräch vorbei – bitte vorher einen Termin vereinbaren, damit wir uns optimal vorbereiten können.

Walter-Zeidler-Str. 15 | 24783 Osterrönfeld