Finde, was du suchst!

Starte deine Suche und finde alle Infos rund um dein Bauprojekt!

22397
Hamburg

TOP Neubau in Sackgassenlage...BUCHORN-Massivhaus baut Ihre exklusive Doppelhaushälfte/Stadtvilla

725.000 €

Gäste-WC

Beschreibung

Hochwertige Doppelhaushälfte-Stadtvilla 131/Verblendsteinvariante in gehobener Ausstattung als förderfähiges KfW-Effizienzhuas 40.

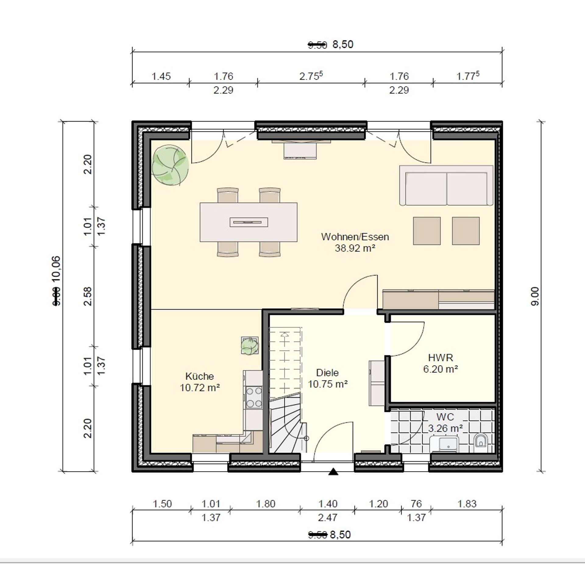
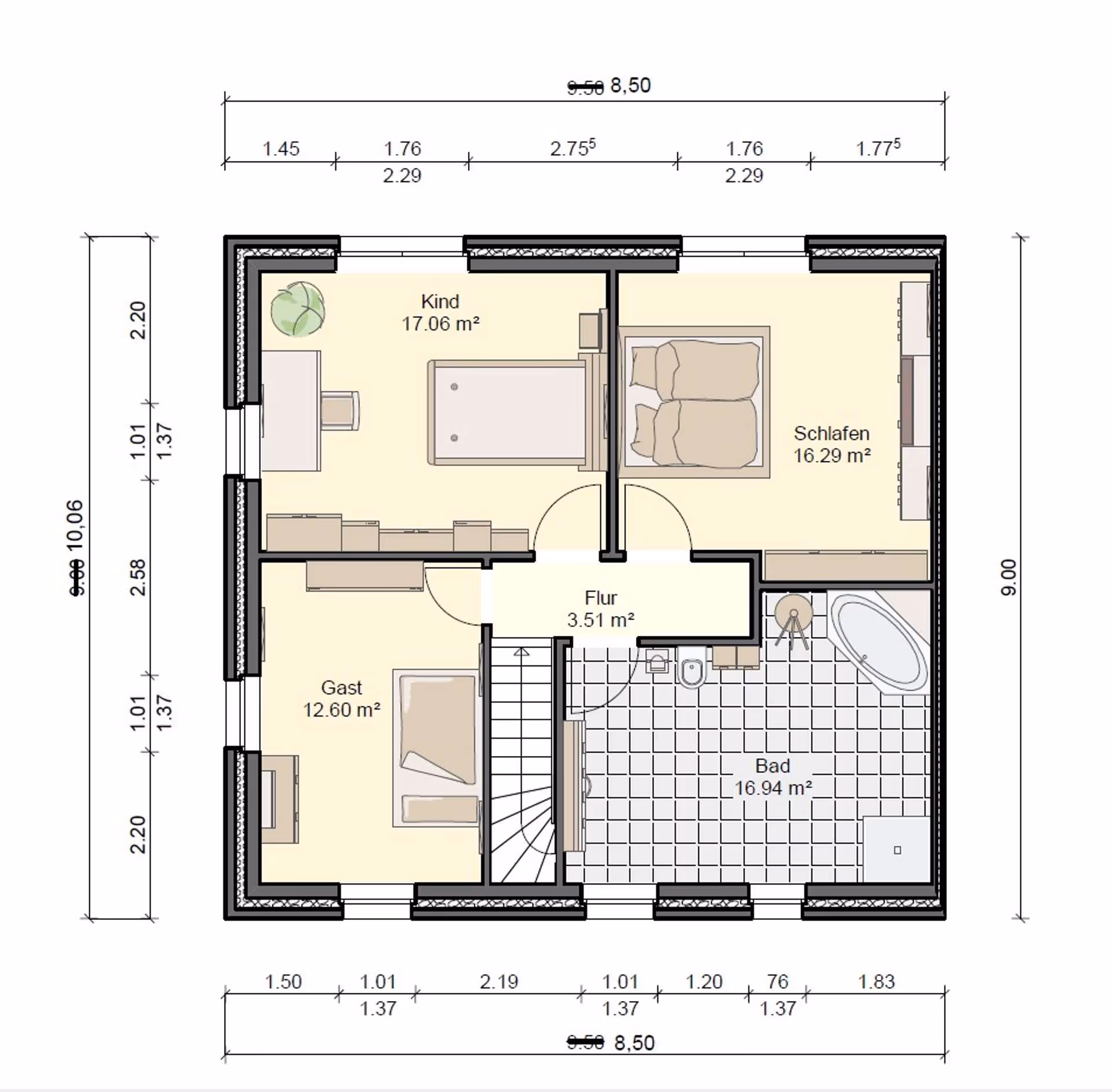
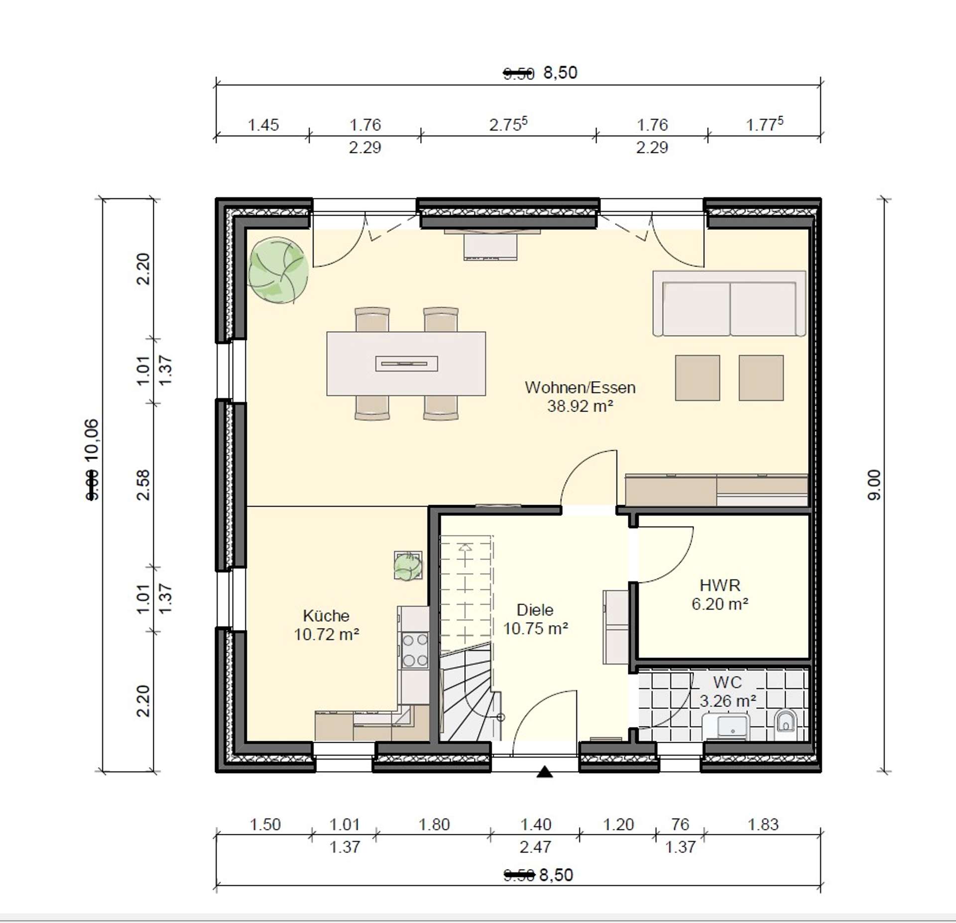
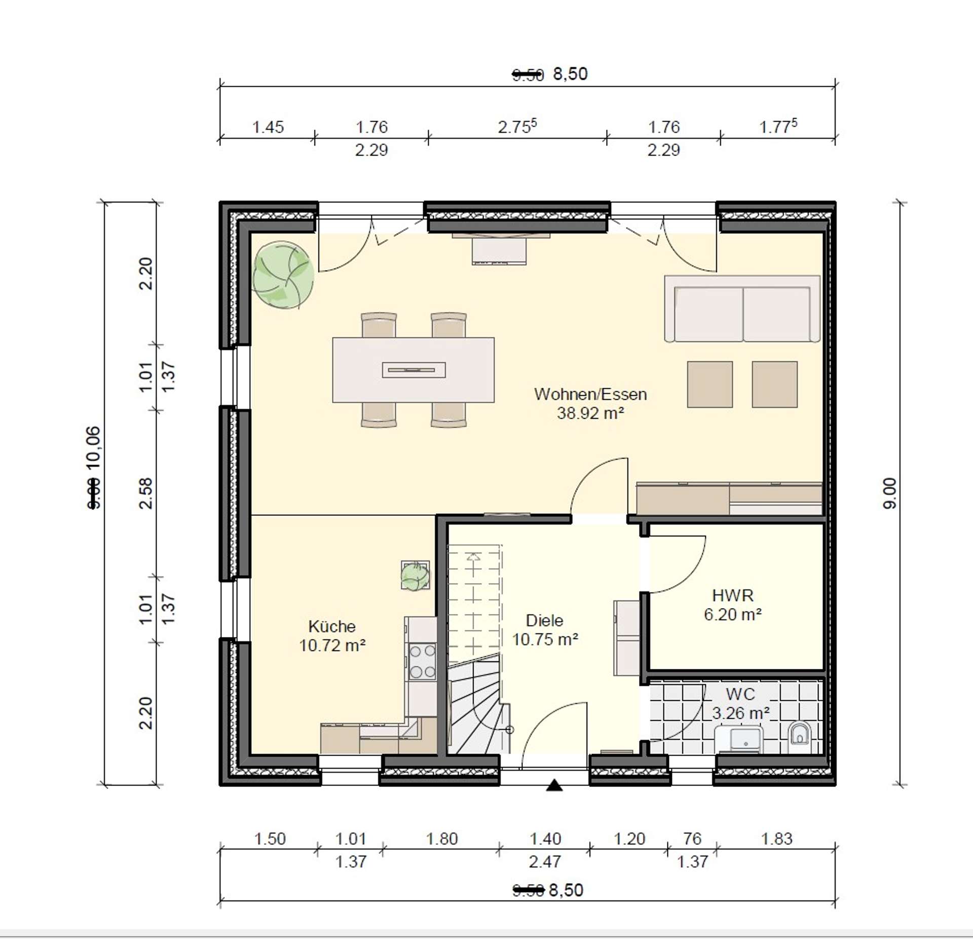
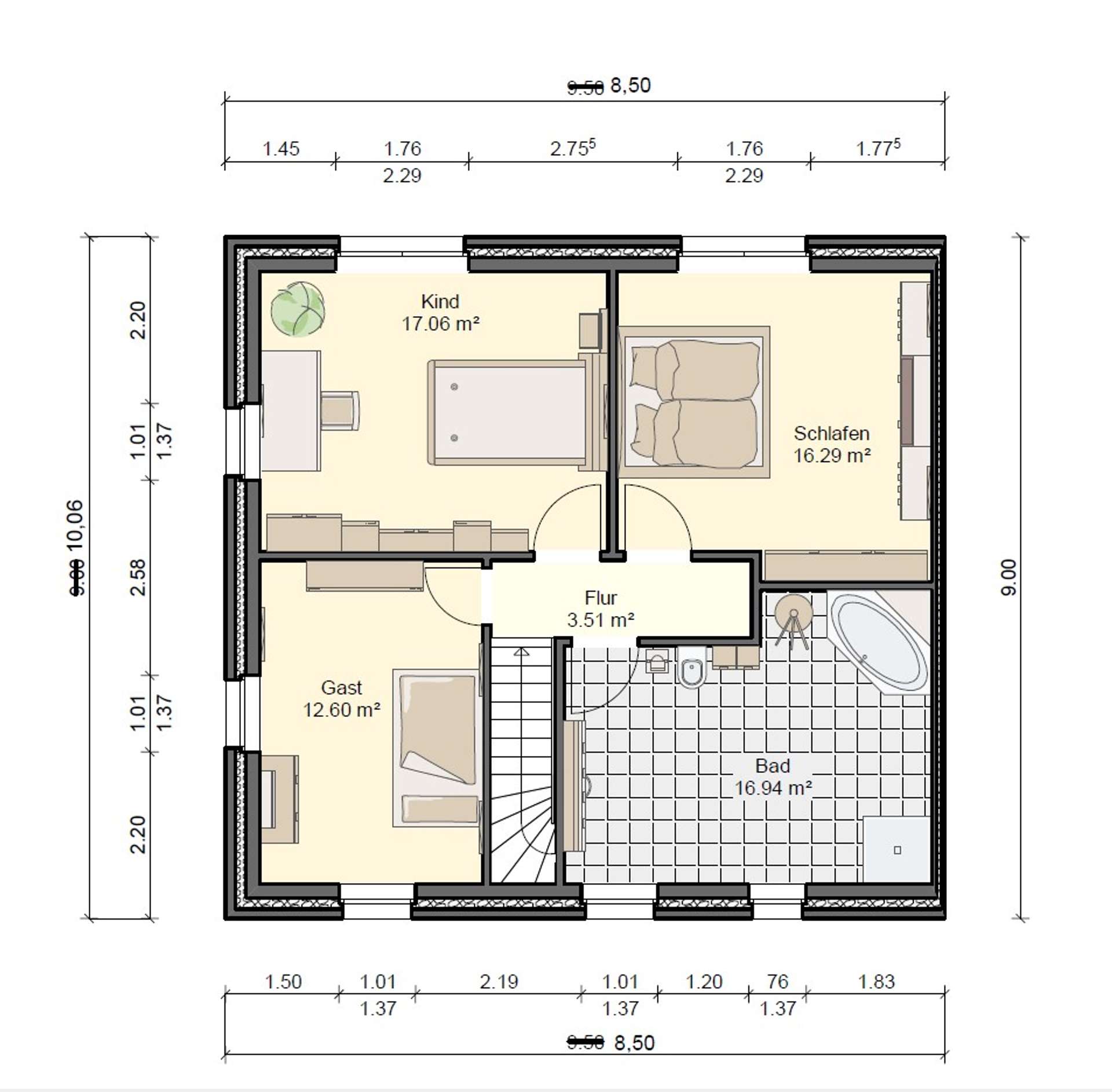
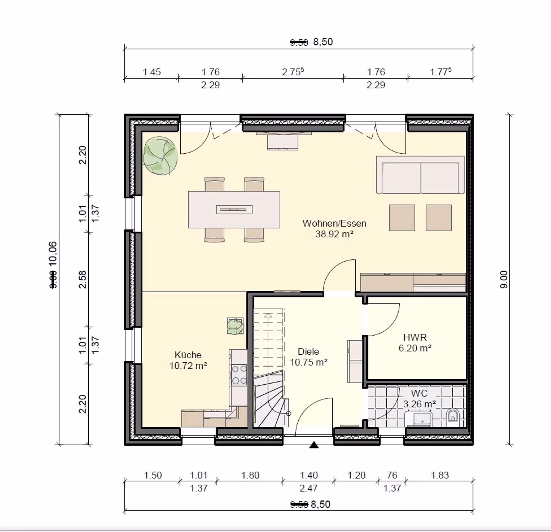
Perfekt für die ganze Familie. Gebaut in norddeutscher Tradition STEIN auf STEIN gemauert! Hier erwarten Sie ca. 130,91m² Wohnfläche auf 2 Etagen mit einen geräumigen Wohn/Esszimmer, einer Küche, Flur, Gäaste-WC und einem Flur/Diele im EG sowie einem Elternzimmer und 2 Kindeerzimmer, einem großen Vollbad und einem Flur im OG.

Selbstverständlich ist der GRundriss als Vorschlag zu verstehen und individuelle an Ihre Bedürfnisse anpassbar.

Ausstattung

Die Ihnen hier angebotene Stadtvilla 131-Doppelhaushälfte hat u.a. folgende Ausstattungsmerkmale:
1. Moderne Luftwärmepumpe der Marke: Wolf
2. Zentrale Wohnraumbelüftungsanlage mit kontrollierter Wärmerückgewinnung der Marke: Wolf
3. Erhöhte Dämmung in der Außenwand, unter der Fundamentsohle sowie in der Geschossdecke zwischen OG & Spitzboden
4. Glasierte oder nicht glänzende Tondachpfannen
5. Dachunterschläge und Stirnbrett aus hochwertigen PVC-Kunststoffprofilen Farbe: WEIß
6. INKLUSIVE Maler- Tapezier- und Spachtelarbeiten
7. INKLUSIVE Bodenlagsarbeiten in den NICHT gefliesten Räumen mit einem Designbelag der Firma Zerrssen / Modell: Watt`n Boden in verschiedenen Farbtönen und Mustern
8. INKLUSIVE einer ca. 20m² große Außenterrasse
9. INKLUSIVE gepflastertem KfZ-Stellplatz vor Ihrem Neubau

Weitere überzeugende Vorteile von BUCHORN-Bau für unsere Bauherren:
1. Individuelle Planung Jedes Bauvorhaben beginnt mit einer Vision. Unsere Experten setzen sich mit Ihnen zusammen, um Ihre Träume und Wünsche in maßgeschneiderte Bau- pläne zu übersetzen. IHR Zuhause soll so einzigartig sein, wie Sie selbst!
2. Massivbauweise STEIN auf STEIN Wir bauen auf Langlebigkeit und Qualität. Unsere Massivbauweise garantiert Stabilität, hervorragende Dämmwerte und eine nachhaltige Bauweise, die IHR Zhause für die Zukunft rüstet!
3. Schlüsselfertige Häuser Von der ersten Skizze bis zum Einzug kümmern wir uns um alles. Unsere schlüsselfertigen Lösungen bieten IHNEN ein sorgenfreies Bauvorhaben, dei dem SIE entspannt den Tag der Schlüsselübergabe entgegensehen können.
4. Alles aus EINER HAND Vergessen Sie die Koordination zahlreicher Dienstleister! Bei uns erhalten Sie alle Leistungen aus einer Hand, was den Bauprozess nicht nur effizienter, sondern auchtransparenter macht.
5. FESTPREISGARANTIE Überraschungen bei den Kosten??? Nicht mit uns!!! Unsere Festpreisgarantie deines Traumhauses ist garantiert, damit SIE pünktlichIHR neues Zuhause genießen können.
6. Fertigstellungsgarantie Wir stehen zu unserem Wort. Die termingerechte Fertigstellung IHRES Traumhauses ist garantiert damit SIE pünktlich IHR neues Zuhause genießen können.

Lage

TOP-Baugrundstück in verkehrsberuhigter Sackgassenlage!!!

Stefan Martensen

Beratung & Vertrieb
martensen@buchorn-bau.de
01733280006
Stefan Martensen
Exposé anfordern

Objektdaten:

Adresse
,
22397
Hamburg
Baujahr
2026
Nutzungsart
Wohnen
Objektart
Doppelhaushälfte
Objektzustand
nach Vereinbarung
Bauphase
Haus in Planung
Qualität
gehoben
Zimmer
4
Schlafzimmer
3
Badezimmer
1
Wohnfläche
130,91 m²
Grundstück
521 m²
Heizungsart
Wärmepumpe

Energieausweis

Energieausweis wird nach Fertigstellung angefertigt.
Kontakt

Wir beraten dich gerne

E-Mail

Du erreichst uns jederzeit per E-Mail. Sende uns deine Anfrage und wir werden uns so schnell wie möglich bei dir melden.

info@buchorn-bau.de

Telefon

Für direkte Anfragen stehen wir dir gerne telefonisch zur Verfügung. Ruf uns an, wir beraten dich individuell und kompetent.

+49 4331 / 86 888 06

Büro

Komm für ein persönliches Gespräch vorbei – bitte vorher einen Termin vereinbaren, damit wir uns optimal vorbereiten können.

Walter-Zeidler-Str. 15 | 24783 Osterrönfeld