Finde, was du suchst!

Starte deine Suche und finde alle Infos rund um dein Bauprojekt!

22145
Hamburg

Willkommen bei BUCHORN-Massivhaus. Geplanter Stadtvilla Neubau in Oldenfelde.

548.500 €

Gäste-WC

Beschreibung

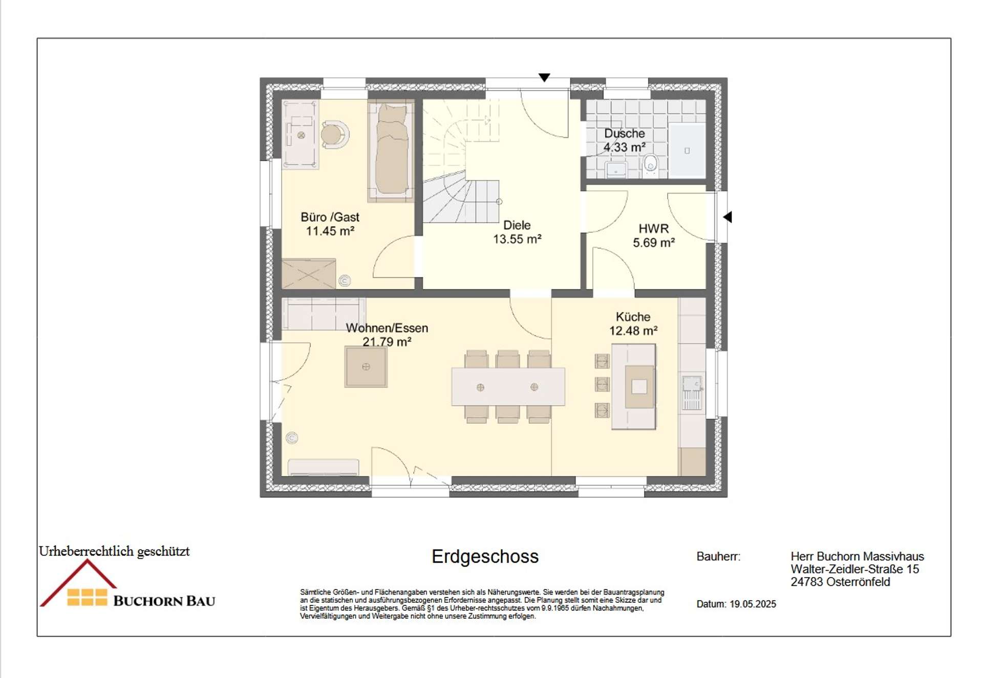
Schicke Stadtvilla/Verblendvariante
(verklinkert) als freistehendes Einfamilienhaus in gehobener
Ausstattung als KfW-Effizinenzhaus 40.
Perfekt für die ganze Familie. Gebaut in norddeutscher Art und
Tradition Massiv Stein auf Stein. Hier erwarten Sie ca. 136,12m²
Wohnfläche DIN auf 2 Etagen mit 3 Schlafräumen, einem Vollbad und
einem Flur im Obergeschoss sowie einen großen
Wohnzimmer, einem
GAST/ARBEITS-Zimmer, einem separatem Esszimmer, Küche,
HWR/TECHNIKRAUM, Gäste-WC und
einem Flur im Erdgeschoss.

Wohntraum du kannst loslegen und Sie sind dabei!

Ausstattung

Folgende Ausstattungsdetails sind in dieser Offerte bereits
INKLUSIVE:
1. Moderne Luft-Wasser-Wärmepumpe der
der Marke WOLF
2. Erhöhte Dämmung in der Außenwand,
unter der Fundamentsohle, Übergang
zum Spitzboden.
4. Glasierte oder nicht glänzende Tondachpfannen
5. . Dachunterschläge aus Kunststoffprofilen
6. Moderne PV-Anlage mit 5,5 KwP und 5 KwH-Batteriespeicher

Weitere überzeugende Vorteile von BUCHORN-Massivhaus für
unsere Bauherren:

1. Individuelle Planung
Jedes Bauvorhaben beginnt mit einer Vision Unsere
Experten setzen sich mit Dir zusammen, um Deine Träume
und Wünsche in maßgeschneiderte Baupläne zu übersetzen.
Dein Zuhause soll so einzigartig sein wie Du selbst.

2. Massivbauweise Stein auf Stein
Wir bauen auf Langlebigkeit und Qualität Unsere
Massivbauweise garantiert Stabilität, hervorragende
Dämmwerte und eine nachhaltige Bauweise, die Dein
Zuhause für die Zukunft rüstet.

3. Schlüsselfertige Häuser
Von der ersten Skizze bis zum Einzug kümmern wir uns
um alles. Unsere schlüsselfertigen Lösungen bieten Dir ein
sorgenfreies Bauvorhaben, bei dem Du entspannt dem Tag
der Schlüsselübergabe entgegensehen kannst.

4. Alles aus einer Hand
Vergiss die Koordination zahlreicher Dienstleister. Bei uns
erhältst Du alle Leistungen aus einer Hand, was den Bauprozess nicht nur effizienter, sondern auch transparenter macht.

5. Festpreisgarantie
Überraschungen bei den Kosten? Nicht mit uns.
Unsere Festpreisgarantie gibt Dir finanzielle Sicherheit
und Planbarkeit von Beginn an.

6. Fertigstellungsgarantie
Wir stehen zu unserem Wort. Die termingerechte Fertigstellung
deines Traumhauses ist garantiert, damit
Du pünktlich Dein neues Zuhause genießen kannst.

Lage

Das angebotene Grundstück liegt im nordwestlichen Teil des
Stadtteils Oldenfelde, der mittlerweile zu Rahlstedt gehört, an
der Grenze zu Farmsen und Berne. Dadurch profitieren Sie von
einer hervorragenden Anbindung an den öffentlichen
Personennahverkehr (ÖPNV): Die U-Bahnlinie U1 ist fußläufig in ca.
850 Metern erreichbar. Die nächstgelegene Haltestelle
„Oldenfelde“ ist somit nur etwa 10 Gehminuten entfernt. Die
Bushaltestelle der Linie 167 befindet sich in nur ca. 250 Metern
Entfernung vom Grundstück.
Über den Berner Heerweg erreichen Sie in nur wenigen Minuten
Farmsen, Berne oder Volksdorf. Trotz der guten
Verkehrsanbindung liegt das Grundstück in einer ruhigen Straße
mit Einfamilienhäusern und viel Grün. Im direkten Umfeld finden
sich zahlreiche Geschäfte des täglichen Bedarfs sowie Schulen,
Kindergärten, Sportvereine und Restaurants

Stefan Martensen

Beratung & Vertrieb
martensen@buchorn-bau.de
01733280006
Stefan Martensen
Exposé anfordern

Objektdaten:

Adresse
,
22145
Hamburg
Baujahr
2026
Nutzungsart
Wohnen
Objektart
Einfamilienhaus
Objektzustand
nach Vereinbarung
Bauphase
Haus in Planung
Qualität
gehoben
Zimmer
5
Schlafzimmer
4
Badezimmer
1
Wohnfläche
130,32 m²
Grundstück
459 m²
Heizungsart
Wärmepumpe

Energieausweis

Energieausweis wird nach Fertigstellung angefertigt.
Kontakt

Wir beraten dich gerne

E-Mail

Du erreichst uns jederzeit per E-Mail. Sende uns deine Anfrage und wir werden uns so schnell wie möglich bei dir melden.

info@buchorn-bau.de

Telefon

Für direkte Anfragen stehen wir dir gerne telefonisch zur Verfügung. Ruf uns an, wir beraten dich individuell und kompetent.

+49 4331 / 86 888 06

Büro

Komm für ein persönliches Gespräch vorbei – bitte vorher einen Termin vereinbaren, damit wir uns optimal vorbereiten können.

Walter-Zeidler-Str. 15 | 24783 Osterrönfeld