Finde, was du suchst!

Starte deine Suche und finde alle Infos rund um dein Bauprojekt!

22399
Hamburg

Bauen Sie doch NEU in Poppenbüttel. BUCHORN-Massivhaus biete zwei Bauplätze für eine Stadtvilla!

548.500 €

Gäste-WC

Beschreibung

Eine sehr schöne Stadtvilla/Verblendvariante
(verklinkert) als freistehendes Einfamilienhaus in gehobener
Ausstattung als KfW-Effizinenzhaus 40.

Perfekt für die ganze Familie. Gebaut in norddeutscher Art und
Tradition Massiv Stein auf Stein.

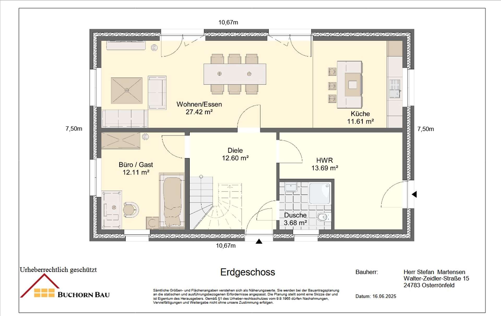
Hier erwarten Sie ca. 152,62m²
Wohnfläche auf 2 Etagen mit 4 Schlafräumen, einen Gast- bzw.
Arbeitszimmer, einem Vollbad und
einem Flur im Obergeschoss sowie einen großen
Wohn/Esszimmer, einem Gast- bzw. Arbeitszimmer; Küche,
HWR/TECHNIKRAUM, Gäste-WC mit Dusche und
einem Flur im Erdgeschoss.
Wohntraum du kannst loslegen und Sie sind dabei!

Ausstattung

Folgende Ausstattungsdetails sind bereits im Hauspreis INKLUSIVE:

1. Moderne Luft-Wärmepumpe der Marke Wolf als Monoblock für
die Bezeihung des Hauses sowie zur Warmwasseraufberei-
tung.

2. Erhöhte Dämmung in der Außenwand 18cm + Erhöhter
Dämmung unter der Fundamantsohle 12cm + Erhöhte Dämmung
zwischen OG und den Spitzboden 24cm.

3.PV-Anlage mit 5,5kWp und 5kWh Batteriespeicher

4. Tondachpfannen der Marke Röben in verschiedenen Farbe
möglich

5. Dachunterschläge + Stirnbrett in glänzenden PVC-
Kunststoffprofilen

6. Bodentiefe Fensterelemente im GESAMTEN OG mit
fesstehendem Unterglas (Sicherheitsverglasung TRAV)

7. Eine zentrale BE- und Entlüftungsanlage mit kontrollierter Wärmerückgewinnung

8. Elektrisch bedienbaren Rollläden im gesamten EG

Weitere überzeugende Vorteile von BUCHORN-Massivhaus:

1. Individuelle Planung
Jedes Bauvorhaben beginnt mit einer Vision Unsere
Experten setzen sich mit Dir zusammen, um Deine Träume
und Wünsche in maßgeschneiderte Baupläne zu übersetzen.
Dein Zuhause soll so einzigartig sein wie Du selbst.

2. Massivbauweise Stein auf Stein
Wir bauen auf Langlebigkeit und Qualität Unsere
Massivbauweise garantiert Stabilität, hervorragende
Dämmwerte und eine nachhaltige Bauweise, die Dein
Zuhause für die Zukunft rüstet.

3. Schlüsselfertige Häuser
Von der ersten Skizze bis zum Einzug kümmern wir uns
um alles. Unsere schlüsselfertigen Lösungen bieten Dir ein
sorgenfreies Bauvorhaben, bei dem Du entspannt dem Tag
der Schlüsselübergabe entgegensehen kannst.

4. Alles aus einer Hand Vergiss die Koordination zahlreicher Dienstleister. Bei uns
erhältst Du alle Leistungen aus einer Hand, was den Bauprozess
nicht nur effizienter, sondern auch transparenter macht.

5. Festpreisgarantie
Überraschungen bei den Kosten? Nicht mit uns.
Unsere Festpreisgarantie gibt Dir finanzielle Sicherheit
und Planbarkeit von Beginn an.

6. Fertigstellungsgarantie
Wir stehen zu unserem Wort. Die termingerechte Fertigstellung.

Lage

ZWEI Baugrundstücke in TOP-Lage von Poppenbüttel!

Stefan Martensen

Beratung & Vertrieb
martensen@buchorn-bau.de
01733280006
Stefan Martensen
Exposé anfordern

Objektdaten:

Adresse
,
22399
Hamburg
Baujahr
2026
Nutzungsart
Wohnen
Objektart
Einfamilienhaus
Objektzustand
nach Vereinbarung
Bauphase
Haus in Planung
Qualität
gehoben
Zimmer
5
Schlafzimmer
4
Badezimmer
1
Wohnfläche
152,62 m²
Grundstück
362 m²
Heizungsart
Wärmepumpe

Energieausweis

Energieausweis wird nach Fertigstellung angefertigt.
Kontakt

Wir beraten dich gerne

E-Mail

Du erreichst uns jederzeit per E-Mail. Sende uns deine Anfrage und wir werden uns so schnell wie möglich bei dir melden.

info@buchorn-bau.de

Telefon

Für direkte Anfragen stehen wir dir gerne telefonisch zur Verfügung. Ruf uns an, wir beraten dich individuell und kompetent.

+49 4331 / 86 888 06

Büro

Komm für ein persönliches Gespräch vorbei – bitte vorher einen Termin vereinbaren, damit wir uns optimal vorbereiten können.

Walter-Zeidler-Str. 15 | 24783 Osterrönfeld